Design EE #0211

Starting at $1,964
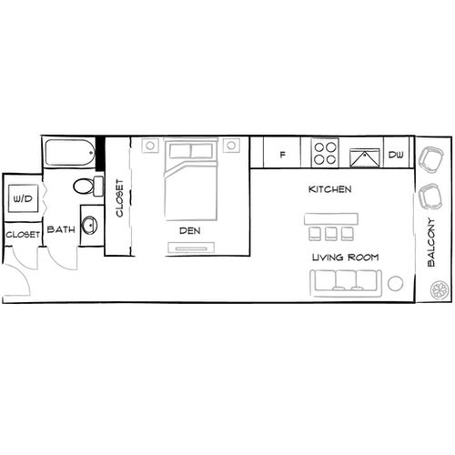
642 Sq. Ft. | Studio | 1 Bath
Available Now
Design EE

Features

  • Living Areas

    • King-size bedrooms
    • Floor To Ceiling Windows
    • Wood Flooring
  • Kitchen and Bath

    • Tile Backsplash
    • Modern Kitchen
    • Dishwasher
    • Microwave
    • Quartz Countertops
    • Glass showers
  • Home Attributes

    • Ceiling Fan
    • Smart Door Lock
    • Air Conditioning
    • Smart Thermostat
    • Dryer
    • Washer
  • Premium Features

    • Walk-in Closets
    • Blackout Roller Shades
  • 2D Diagram
  • 2D Diagram Furnished
  • 3D Tour
2D Diagram

Design EE

This studio, 1-bathroom floor plan features a spacious living area, separate den/bedroom space and private balcony.

2D Diagram Furnished

Design EE

This studio, 1-bathroom floor plan features a spacious living area, separate den/bedroom space and private balcony.

Design EE

This studio, 1-bathroom floor plan features a spacious living area, separate den/bedroom space and private balcony.

*Apartment prices, availability and terms are subject to change without notice. Apartment photos and floor plans are for illustrative purposes only. Actual square footage, layout, and property or apartment features may vary.